4- Zimmer Wohnungen
- 4 Zimmer
- ab 88,00 m²
- optionaler Tiefgaragenstellplatz
- Preise ab EUR 398.950,-
- Moderne Wohnungen mit großer Terasse oder Balkon
- Intelligente Raumgestaltung, hochwertige Materialien, hervorragender Schallschutz
- Gemeinschaftsraum und Balkon mit Küche für Aktivitäten und Unterhaltung
- Ruheoase im Grünen
Grundrissbeispiele
Wohnung W53 4. Dachgeschoss
- 398.950
Raumaufteilung Typ 12.2
- 1 Diele 7,29
- 2 Wohnen 20,06
- 3 Kochen 7,48
- 4 Bad 6,10
- 5 Abst. 1,85
- 6 Zimmer 1 18,70
- 7 Zimmer 2 10,30
- 8 Zimmer 3 10,18
- 9 Terrasse (50%) 6,00
87,96 m²
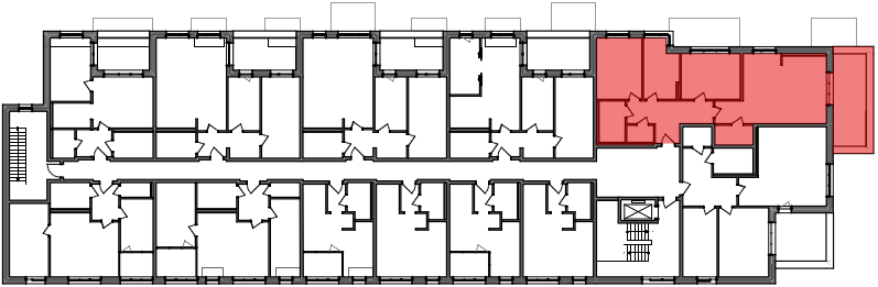
Lage
Wohnung W54, Dachgeschoss
- 540.750
Raumaufteilung Typ 13
- 1 Diele 14,71
- 2 Wohnen 30,14
- 3 Kochen 8,21
- 4 Bad 6,38
- 5 WC 2,72
- 6 Abst. 4,45
- 7 Zimmer 1 16,77
- 8 Zimmer 2 11,97
- 9 Zimmer 3 16,47
- 10 Terrasse (50%) 9,17
120,99 m²
Lage