3- Zimmer Wohnungen
- 3 Zimmer
- ab 69,00 m²
- optionaler Tiefgaragenstellplatz
- Preise ab EUR 296.200,-
- Moderne Wohnungen mit großer Terasse oder Balkon
- Intelligente Raumgestaltung, hochwertige Materialien, hervorragender Schallschutz
- Gemeinschaftsraum und Balkon mit Küche für Aktivitäten und Unterhaltung
- Ruheoase im Grünen
Grundrissbeispiele
Wohnung W24, 2. Obergeschoss
- 339.950

Raumaufteilung Typ 3.2
- 1 Diele 7,65
- 2 Wohnen 17,79
- 3 Kochen 6,51
- 4 Bad 6,26
- 5 Abst. 2,89
- 6 Zimmer 1 16,85
- 7 Zimmer 2 11,38
- 8 Balkon (50%) 5,75
75,08 m²
Lage


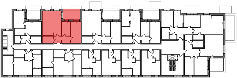
Wohnung W48, 2. Obergeschoss
- 306.950

Raumaufteilung Typ 7.1
- 1 Diele 6,47
- 2 Wohnen 16,84
- 3 Kochen 5,33
- 4 Bad 5,95
- 5 Abst. 2,54
- 6 Zimmer 1 14,75
- 7 Zimmer 2 10,60
- 8 Wintergarten 6,54
69,02 m²
Lage


Wohnung W51, Dachgeschoss
- 405.150

Raumaufteilung Typ 12.1
- 1 Diele 7,28
- 2 Wohnen 31,06
- 3 Kochen 7,75
- 4 Bad 6,10
- 5 Abst. 1,86
- 6 Zimmer 1 18,70
- 7 Zimmer 2 10,30
- 8 Terrasse (50%) 6,00
89,05 m²
Lage


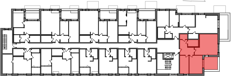
Wohnung W16, Erdgeschoss
- 299.700

Raumaufteilung Typ 16
- 1 Diele 5,61
- 2 Wohnen 18,69
- 3 Kochen 5,39
- 4 Bad 5,90
- 5 Abst. 2,49
- 6 Zimmer 1 16,69
- 7 Zimmer 2 10,18
- 8 Wintergarten 4,75
69,70 m²
Lage


Wohnung W43, 2. Obergeschoss
- 431.950

Raumaufteilung Typ 10.0
- 1 Diele 10,39
- 2 Wohnen 35,75
- 3 Kochen 11,41
- 4 Bad 5,90
- 5 Abst. 2,00
- 6 Zimmer 1 15,06
- 7 Zimmer 2 11,37
- 8 Terrasse (50%) 5,21
97,09 m²
Lage


Wohnung W55, Dachgeschoss
- 459.500

Raumaufteilung Typ 14
- 1 Diele 14,23
- 2 Wohnen 25,65
- 3 Kochen 10,33
- 4 Bad 6,04
- 5 Abst. 3,38
- 6 Zimmer 1 14,30
- 7 Zimmer 2 20,91
- 8 Terrasse (50%) 7,29
102,13 m²
Lage

